Правильное проектирование электропроводки объекта играет ключевую роль в обеспечении безопасности и комфорта жизни людей, которые будут находиться в данном помещении. Неправильно спроектированная электропроводка может привести к различным аварийным ситуациям, включая короткое замыкание или пожар, подробнее Вы можете почитать на сайте: https://energy-systems.ru/proektirovanie-elektroprovodki-obekta-ot-7-500-rub. Поэтому важно обратить внимание на этот аспект при строительстве или реконструкции объекта. 
Основные этапы проектирования
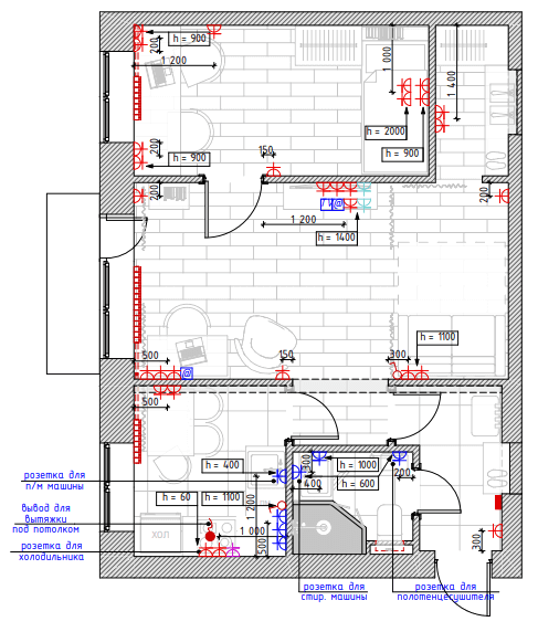
1. Анализ потребностей. Первым этапом проектирования электропроводки является анализ потребностей объекта. Необходимо определить, сколько и какие устройства будут подключены к сети, какова мощность потребляемой энергии, а также учитывать возможные будущие изменения в потребностях. 2. Разработка схемы электропроводки. На основе проведенного анализа составляется схема распределения электропроводки по объекту. Схема должна отображать все электрические цепи, мощности и типы проводов, а также расположение розеток, выключателей и осветительных приборов. 3. Выбор оборудования и материалов. После разработки схемы необходимо подобрать подходящее оборудование и материалы для установки. Важно учитывать соответствие выбранных компонентов нормативам и стандартам безопасности. 4. Установка и монтаж. Последний этап – установка и монтаж электропроводки. Работы должны проводиться с соблюдением всех правил и рекомендаций, чтобы исключить возможность возникновения неполадок и аварийных ситуаций.
Преимущества профессионального подхода
Профессиональное проектирование электропроводки объекта имеет несколько преимуществ:
1. Безопасность. Профессионалы учитывают все нюансы и особенности объекта, что исключает возможность неполадок и аварийных ситуаций. 2. Экономия ресурсов. Правильно спроектированная электропроводка поможет сэкономить электроэнергию и продлить срок службы оборудования. 3. Комфорт. Грамотно распланированная электропроводка обеспечит комфортное пребывание людей в помещении.
Стоимость проектирования
Стоимость проектирования электропроводки объекта зависит от ряда факторов, включая общую площадь объекта, сложность электрической схемы, необходимое оборудование и материалы, а также стандарты безопасности, которым должна соответствовать электропроводка. В среднем, проектирование электропроводки объекта может обойтись от 7 500 рублей и выше, в зависимости от конкретных условий. Важно помнить, что вложения в профессиональное проектирование окупят себя в будущем за счет экономии ресурсов и обеспечения безопасности. Проектирование электропроводки объекта – важный этап строительства или реконструкции, который необходимо доверить профессионалам. Правильно спроектированная электропроводка обеспечит безопасность, комфорт и эффективное использование электроэнергии, что является ключевым для успешной эксплуатации объекта.
